Groen wonen in Carolina Parc

In de centrale groenzone van Leidschendam heeft Bureau Kroner twee woongebouwen ontworpen. Dankzij de uitgebalanceerde stedenbouwkundige inpassing, staan de bouwblokken vrij in een landschappelijke setting. Dat maakt Carolina Parc tot een ruime groene woonlocatie. 

default

default

default

Adres

Prinses Carolinalaan,
Leidschendam

Opdrachtgever

Riva Real Estate

Start bouw

2022

Ontwerp

2018 - 2020

Oplevering

2024

Ontwerp buitenruimte

Sant & Co

De gemeente Voorburg-Leidschendam wordt doorsneden door een groene corridor die de wijken aan weerszijde van deze strook verbindt. Deze ‘groene ruggengraat van de gemeente’ varieert in breedte en wordt gekenmerkt door name losse (bedrijfs-)gebouwen in een groene setting.

Een van die bedrijfsgebouwen, een voormalige DAVO autogarage, was in bezit van Riva autobedrijven en kwam leeg te staan. Riva heeft in tegenstelling tot de doorsnee ontwikkelaanpak - van het maximaliseren van aantallen - het project zelf ontwikkeld op basis van de kracht en de kwaliteit van de locatie en de woonkwaliteit van het project zelf. 

Brink uit Rotterdam werd aangetrokken om het gehele ontwikkelproces te faciliteren en Bureau Kroner uit Den Haag werd als architect geselecteerd. In aansluiting op de stedenbouwkundige opzet van Bureau Kroner heeft Buro Sant & Co het landschapsontwerp vormgegeven.

Participatie

Er is een uitgebreid participatie-traject opgesteld en uitgevoerd, waarbij omwonenden konden meedenken over de plannen. Ook de gemeente speelde een duidelijke rol in het stellen van randvoorwaarden en het toetsen van de modellen die uit het proces naar voren kwamen.

Belangrijke uitgangspunten voor de ontwikkeling waren het behoud en het versterken van de centrale groenzone en het verbinden van de verschillende schaalniveaus van de omliggende woonbebouwing. Daarnaast was nadrukkelijk behoefte aan ruime (sociale) huurwoningen voor jongeren uit Het Liem. 

Minder is meer

Een interessant gegeven is de geleidelijke afname van het programma en het volume gedurende het ontwerpproces.

Er is een voor de hand liggende relatie tussen de kosten en het ruimtebeslag voor het parkeren en het aantal woningen. Een compacte half verdiepte parkeergarage maakte het mogelijk om de gebouwen meer in het groen te zetten en beter (vrijer) op de locatie te kunnen positioneren.

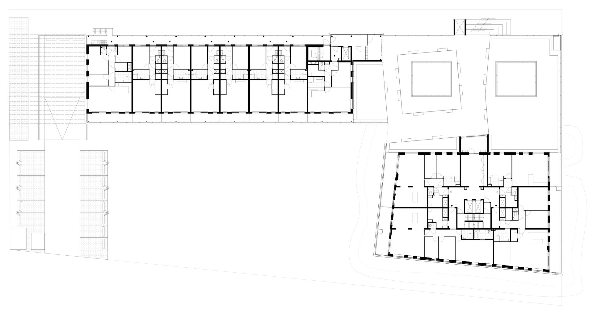
Werd er in eerdere modellen nog uitgegaan van vier woongebouwen op de locatie, uiteindelijk bestaat het plan uit twee woongebouwen.

De business-case bleef ondertussen gelijkwaardig, maar wel met minder risico en een veel aantrekkelijker project. Door de stedenbouwkundige opzet is meerwaarde gecreëerd, zowel inhoudelijk als financieel. Daarnaast werd de acceptatie van de plannen versterkt door het verwerken van de uitkomsten van de participatie en de duidelijk kwalitatieve uitgangspunten, wat veel vertrouwen creëerde.

Woonprogramma

Het project bestaat uit in totaal 90 koop- en huurwoningen. 30 procent daarvan - in totaal 27 woningen - worden verhuurd in de sociale huur. Het project sluit daarmee naadloos aan op het vigerende woonbeleid vanuit de gemeente.

Het vrijstaande woonblok met 11 woonlagen telt 4 koopwoningen per laag. In totaal gaat het om 42 woningen van ca. 90, 115, 125 en 145 vierkante meter en twee penthouses van ongeveer 200 vierkante meter. Deze woningen met hun grote balkons bedienen de woonmarkt voor ouderen en empty-nesters uit de Haagse regio.

Het lange woonblok parallel aan de Noordsingel dat van 4 naar 7 woonlagen oploopt, telt in totaal 48 woningen van ca. 60, 70 en 90 vierkante meter. Dit betreft sociale en middeldure huur die gemengd in het woonblok zijn opgenomen. Er was een grote vraag naar de appartementen, met name vanuit de gemeente Voorburg--Leidschendam en de omliggende gemeentes.

Stedenbouwkundige studies

Stedenbouwkundige opzet

De twee woongebouwen staan als losse bouwblokken in een parkachtige setting. De gebouwen vormen een evenwichtig ensemble met elkaar.

Het langwerpige gebouw langs de Noordsingel is getrapt opgebouwd (van vier tot zeven woonlagen) en vormt zo de overgang tussen de eengezinswoningen op het naastgelegen kavel en het nieuwe appartementengebouw van elf woonlagen.

Het hoge woonblok ligt mooi vrij, op de hoek van de kavel en creëert daarmee rondom een vrij blikveld vanuit de woningen. Het gebouw vormt tegelijkertijd een bescheiden baken aan de Veurse Achterweg en de Noordsingel zonder daar direct aan te liggen. Dat verstrekt het karakter van solitaire gebouwen in een groene zone. Het lange blok parallel aan de Noordsingel schermt het nieuwe park mooi af. Zo is een waardevolle rustige, groene leefomgeving gecreëerd.

De entrees van beide gebouwen liggen aan een verhoogde daktuin; een semi-privaat entreegebied. Bewoners parkeren uit het zicht in een half verdiepte parkeergarage onder het complex. Parkeerplekken op het maaiveld zijn voornamelijk bestemd voor deelauto’s en bieden daarmee extra duurzame mobiliteit-opties voor de bewoners.

Klimaatadaptief woonpark

De halfverdiepte parkeergarage verdwijnt achter een talud waarover een voetpad is aangelegd dat de verbinding tussen de straat en het entreeplein vormt. Door Sant&Co is dit talud als park ontworpen; een verbinding tussen de straat en de woningen maar ook een groene verblijfs- en ontmoetingsruimte. Door het toepassen van rijkgeschakeerde gras- en bloemensoorten ontstaat er een grote mate van biodiversiteit.

Op subtiele wijze is er een overgang tussen openbare ruimte en groene semiopenbare ruimte gecreëerd. Regenwater wordt op een mooie natuurlijke wijze langzaam over de locatie heen afgevoerd naar een lichte inkeping in het maaiveld op de overgang naar de gemeentelijke openbare ruimte. Ook bij heftige buien wordt het water op deze manier op de locatie zelf opgevangen en verdeeld.

Langs de doorgaande weg van de Noorsingel is de oeverzone langs de singel verbreed en vergroend. Alle randen van de locatie hebben meer ruimte gekregen die met gedifferentieerd groen is ingericht. Door het behoud van de bestaande monumentale bomen voelt de inpassing heel vanzelfsprekend. De locatie is van alle kanten toegankelijk, een enorme meerwaarde voor de wijk.

Architectuur

De vrije stedenbouwkundige compositie wordt versterkt door de architectuur.

De gevels zijn opgebouwd uit horizontale betonbanden waartussen staand metselwerk en verdiepingshoge gevelopeningen elkaar in een speels ritme afwisselen. Uiterst royale overhoekse balkons, die toegankelijk zijn via brede schuifdeuren, geven bewoners de mogelijkheid maximaal te genieten van de parkachtige omgeving en dragen daarmee bij aan een sterke verbinding tussen binnen en buiten.

Door de balkons ten opzichte van elkaar te laten verspringen, lijken ze om het gebouw heen te ‘dansen’. Hierdoor oogt het volume heel luchtig en transparant. Tegelijkertijd zorgt dit voor meer daglicht op de balkons en wordt er ruimte gecreëerd voor een grote plantenbak die ook als privacy-scherm dient. Bij het lange blok worden zowel de brede balkons als de galerijen aan de kant van de Noordsingel ondersteund door ranke witte kolommen. Dat werkt als een scherm tussen de gevels en de buitenruimte.

Frisse en open uitstraling

Voor de materialisatie is gekozen voor zachte kleuren en natuurlijke materialen. Het palet bestaat uit een lichtgele gevelsteen, naturel hout en witte prefabbeton elementen. De architectuur sluit daarmee aan op de grote blokken van Het Prinsenhof. Tegelijkertijd wordt een frisse en lichte toon gezet die mooi samengaat met het groen op het maaiveld en de bomen rondom. Er is bij de balkons gebruik gemaakt van hout, zowel op de vloer, als aan de gevel en aan het plafond. De tactiliteit van het aanraakbare, voelbare hout maakt deze buitenruimtes comfortabel en plezierig om te verblijven.

Het gehele complex vormt een architectonische eenheid die een frisse en open uitstraling combineert met een landschappelijk beeld, waarbij de horizontale gelaagdheid versterkt de relatie met de groene omgeving en de omliggende wijken versterkt. Een enorme kwaliteitsimpuls voor deze plek, zowel als woonlocatie als schakel in de groenstructuur en een aanvulling op de openbare ruimte.